B型高配自动门 - B型高配自动门 【返回】 |
型号名称:B-480/B型高配自动门
产品简介
|
项 目 |
内 容 |
|
门扇材料 |
钢化玻璃 |
|
开口净高 |
≤3000 mm |
|
开口净宽 |
1300~2500 mm |
|
电子安全装置 |
门关闭时遇到障碍物会自动反弹,并迅速开启; |
|
遥控器 |
正常供电、断电均可使用; |
|
安全光线 |
检测到自动门开口位置有人时,门扇自动开启,不会关闭 |
|
运行模式(遥控) |
正常供电:自动、门禁、敞开、锁门; |
|
|
断电:敞开、锁门; |
|
开门方式 |
感应器、门禁机、手押开关、出门按钮等; |
|
锁门方式 |
B级电控锁锁定门扇;磁力锁锁定电机 ; |
|
消防 |
断电自动开门;火灾自动开门; |
|
USP备用电源 |
断电后对设备供电; |
核心技术
n 控制方式:采用美国先进的微电脑处理技术,智能检知门扇重量与开口大小,自动设定运行参数,时刻监控运行状态,确保自动门运行平稳。
n 驱动装置:采用执行微电脑处理器指令的直流无刷电机,运行精准、力矩大、寿命长。
n 减速机构:斜齿轮传动减速,躁音小,平稳可靠。
n 传动方式:同步皮带驱动门扇运行,传动精准,运行平稳。
n 张紧机构:恒力调节传动皮带松紧度。
主要技术指标
|
规 格 |
主 要 技 术 指 标 |
|
|
门体型式 |
单开式 |
双开式 |
|
门扇最大重量 |
145 Kg |
2×120 Kg |
|
开口净宽度 |
750~1600 mm |
1300~2500 mm |
|
开口净高度 |
≤3000mm |
|
|
开启速度 |
150~450 mm/s(可调) |
|
|
关闭速度 |
130~450 mm/s(可调) |
|
|
手动开启力 |
≤100 N(断电状态下) |
|
|
开门停留时间 |
0~8 s(可调) |
|
|
电机 |
DC24V/65W(直流无刷) |
|
|
躁音 |
≤55 dB |
|
|
额定功率 |
100W |
|
|
电源 |
AC220V 50Hz |
|
|
工作环境温度 |
-20℃~﹢50℃ |
|
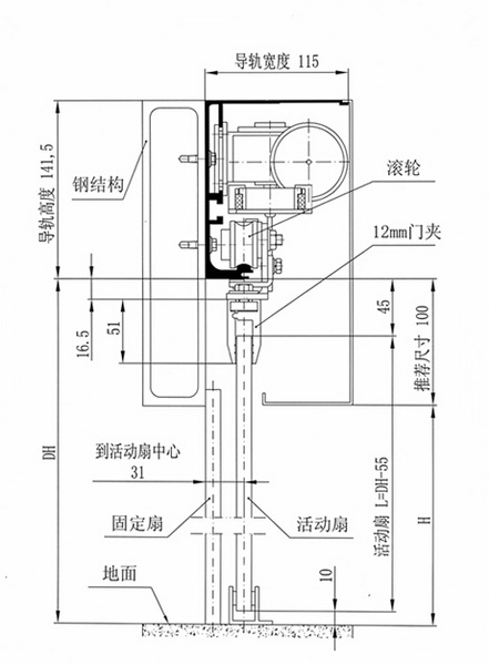
剖面图



